Lavish European Style Home
SMALL EUROPEAN HOUSE PLANS
European House Plans and
Cool Home Floor Plans | Search Results | Legacy North West
Spanish Style House Floor
RAMBLER HOUSE FLOOR PLANS
Ranch Style House Floor Plans
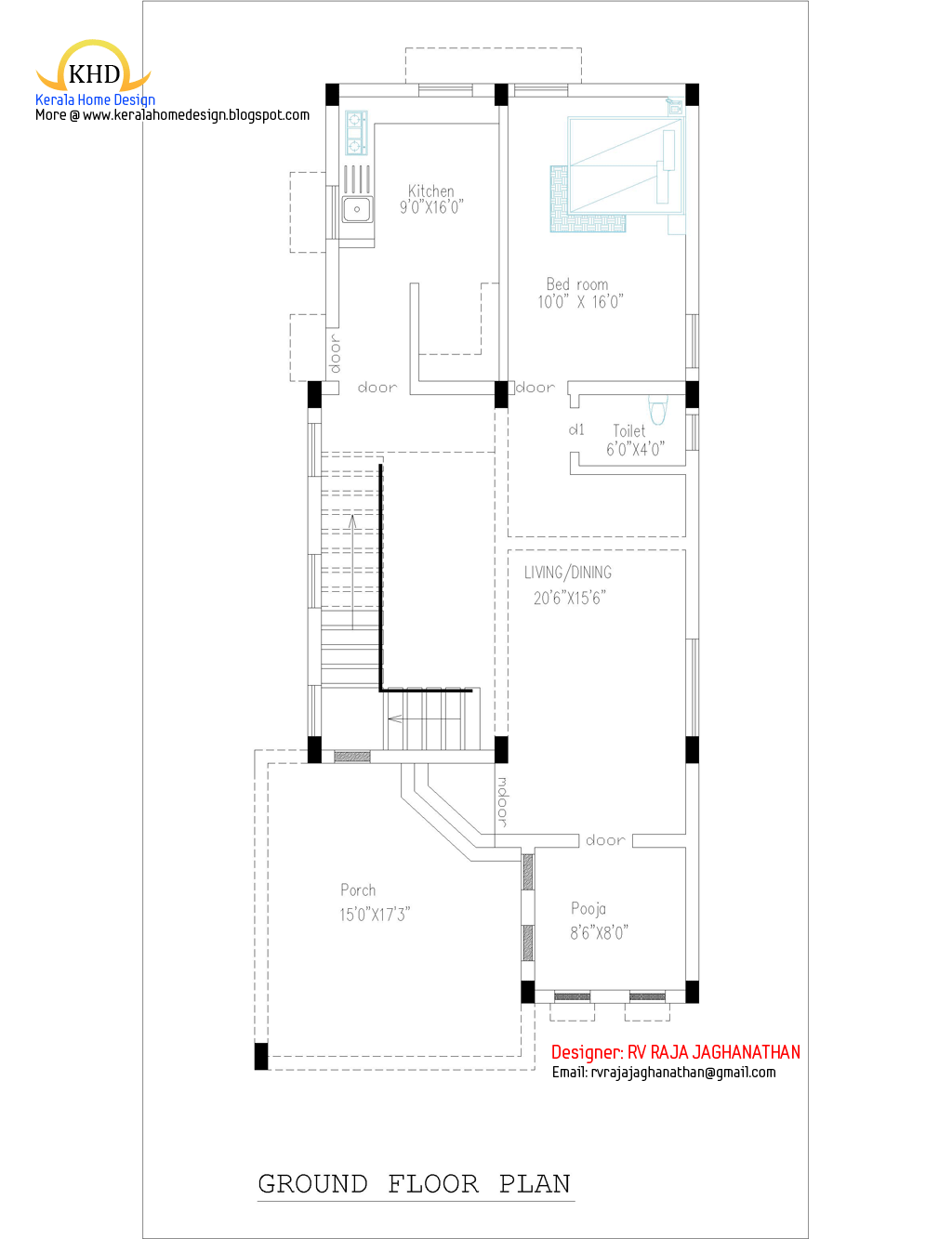
Kerala style single floor house plan - 1155 Sq. Ft. | home appliance
single floor house plan

cheap house plans
Plans Prairie Style House
House Plans Style Modern Home | Search Results | Legacy North West
Choose the Simple House Plans
Modern Home Design PlansInterior Decorating,Home Design-Sweet Home
Designer home decor ideas for
SMALL EUROPEAN HOUSE PLANS
Small Style House Floor Plans
Kerala style single floor house plan - 1155 Sq. Ft. | home appliance
Ground Floor Plan - 1155.51 SQ

AFFORDABLE HOUSEPLANS
Small House Plans & Affordable
6 Awesome dream homes plans - Kerala home design and floor plans
European style home sloping

House Plans Style Modern Home | Search Results | Legacy North West
House plans and home floor
European Style for Today's Family (HWBDO70027) | European House ...
European Style for Today's Family. House Plans #HWBDO70027
New American Home Plans at Dream Home Source | House Plans and ...
New American house plans
English style house in Kerala - 3300 Sq. Ft. | Enter your blog ...
Facilities in this house

SMALL EUROPEAN HOUSE PLANS
House plans, floor plans and
Beautiful European-Style (HWBDO04356) | New American House Plan ...
Beautiful European-Style. House Plans #HWBDO04356
Bungalow House Plans and Bungalow Designs at BuilderHousePlans.
Open, informal floor plans
Kerala style 2 bedroom small villa in 740 sq.ft. | KeRaLa HoMe
small budget villa. House Sq.

1400 square feet small villa elevation - Kerala home design and ...
Small and beautiful villa in

Single Floor House Plan and Elevation - 1400 Sq. ft | home appliance
Single Floor House Plan and

COUNTRY LIVING HOUSE PLANS
Cottage House Plans For the
Rick Garner House Plans & Multifamily Plans - Ridgeland, MS ...
House floor plan available in
European Home Design | home design
European Home Plans
Single Floor House Plan and Elevation - 1400 Sq. ft | home appliance
Single Floor House Plan and

Plan 020H-0180 - Find Unique House Plans, Home Plans and Floor ...
European Style House
2d elevation and floor plan of 2633 sq.feet - Kerala home design ...
See Floor Plan drawings

Small House Plans and Home Floor Plans at Architectural Designs
Plan W16812WG
House Plans, Home Plans, Floor Plans and Home Building Designs ...
Each Donald A. Gardner plan is
6 Awesome dream homes plans - Kerala home design and floor plans
3)European style home sloping

Single Floor House Plan and Elevation - 1400 Sq. ft - Kerala home ...
Single Floor House Plan and

House plans | home plans | floor plans by Designs Direct, the ...
Featured House plan - The
MEGA HOUSE PLANS
Floor Plans To The 25,000
Small Home Design Plans | Home Decor Idea
Small House and Home Plans
Kerala home design and floor plans
Colonial style home

2700 sq.feet Kerala style home plan and elevation - Kerala home ...
Kerala style house. See floor

Narrow Lot Home Plans | House Plans and More
European style narrow lot
New American House Plans at eplans.com | New Home Floor Plans
Style: European
ASIAN STYLE HOUSE PLANS
Modern Style Home House Floor
Traditional looking Kerala style house in 2320 sq.feet - Kerala ...
Ground floor

South Indian style new modern 1460 sq. feet house design - Kerala ...
South Indian style house

On Location - In Seoul, a Traditional House Adopts Modern Style ...
To make the small house feel
ASIAN STYLE HOUSE PLANS
Modern Style Home House Floor
House Plans Style Modern Home | Search Results | Legacy North West
Small house Kennedy Residence
Kerala style floor plan and elevation #6 | home appliance
Kerala style floor plan and

SINGLE FAMILY HOME PLANS
House plans, home plans, floor
Srilankan style Home plan and elevation - 2230 Sq. Ft. | home ...
Srilankan style Home plan and

House Plans, Home Plans, Floor Plans and Home Building Designs ...
5 bedroom Mediterranean home
New Home Collections - Silverleaf
Each home is marked by
House Plan and Elevation | home appliance
Browse » Home » Floor plan and

Single Floor House Plan and Elevation - 1290 Sq. ft | home appliance
Single Floor House Plan and

Small House Bliss | Small house designs with big impact
The Skyward House is a small
2 Story Home Plans - 2 Story Home Designs from Homeplans.
The floor plans in a two-story
Single Floor House Plan and Elevation - 1170 Sq. ft - Kerala home ...
Single Floor House Plan and

Hipped-Roof Modern Neocolonial House
1950s floor plan and rendering
No comments:
Post a Comment